Create Your First Project
Start adding your projects to your portfolio. Click on "Manage Projects" to get started
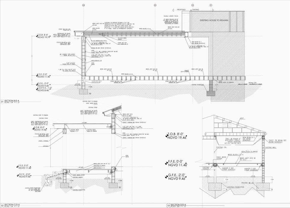
282 NE 116th St Miami
Addition
282 NE 116th St Miami FL 33161
An addition was made to the existing home to expand the living area and improve its functionality. The project included the design and construction of a new structure that seamlessly integrated with the original building, ensuring stability, architectural continuity, and regulatory compliance. In addition, the necessary MEP (mechanical, electrical, and plumbing) systems were incorporated to provide the new area with modern and efficient installations, ensuring its operability and comfort. The entire process was carried out in accordance with local building codes and under technical supervision to ensure the quality and safety of the project.

















